Universitätsklinikum Carus Fetscherstraße 74, Dresden

Typ
krankenhaus
Zeitraum
2009
Bauherr
universitätsklinikum c.g. carus dresden
Architekturbüro
dom-ino felchner+kolb partnerschaft
Leistungen
entwurfsplanung, baugenehmigung

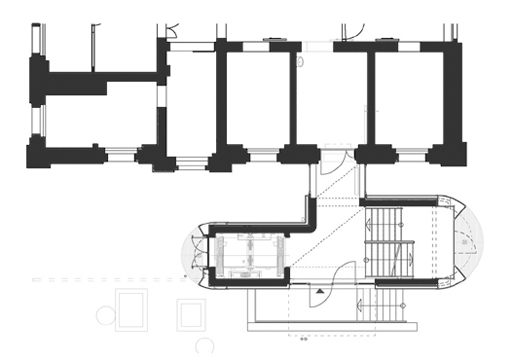
neubau-entwurf eines aufzugs und treppenhauses vor den südgiebel des gebäudes als massives bauwerk mit eigenständiger architektonischer lösung. der anschluss an den altbau wird über einen zurück-versetzten stahl-glas-verbinder realisiert.