












Das Eckgrundstück befindet sich mitten in Dresden unweit der Elbe sowie der S-Bahn-Haltestelle „Bahnhof Mitte“. Es grenzt im Norden an die Maxstraße und mit der Maxstraße 15 an ein historisches und denkmalgeschütztes Gebäude. Im Westen befindet sich die Könneritzstraße, im Süden die Ritzenbergstraße, die im Bereich des Grundstücks verkehrsberuhigt ist und direkt zum nahegelegenen Schützenplatz führt. Die geschlossene Bebauung entlang der Ritzenbergstraße wurde im 2.Weltkrieg zerstört.
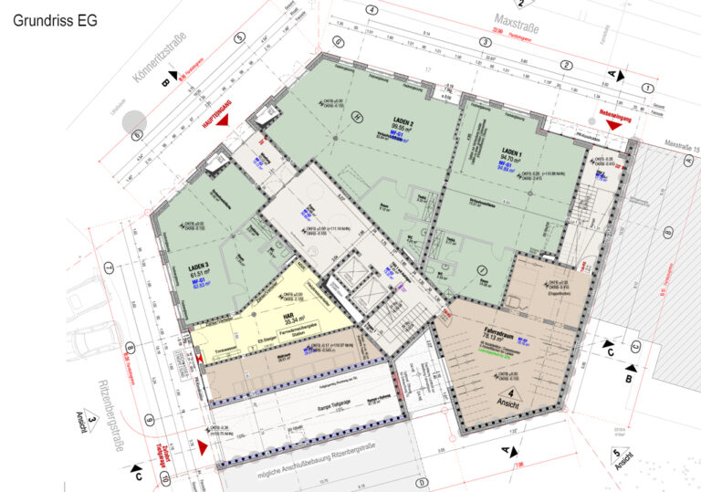
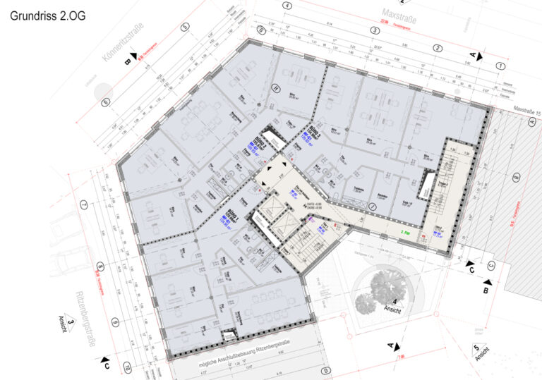
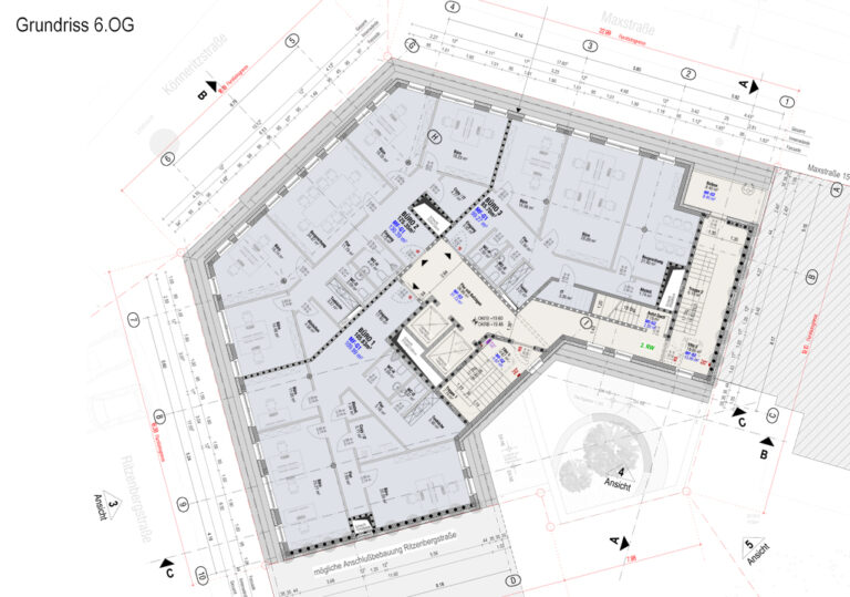
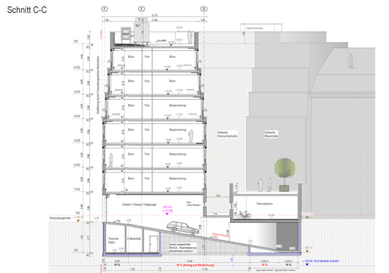
Der 7-geschossige Neubau erhält eine Tiefgaragenebene. Die Gebäudetechnik befindet sich auf dem Flachdach. Im Erdgeschoss entstehen Läden, in den Obergeschossen je Etage 3 Büroeinheiten. Die hervorgehobene Sockelzone verläuft 1-geschossig und mündet in der Könneritzstraße in den 5-geschossigen Risaliten. Ab dem 4.Obergeschoss gibt es insgesamt drei gestaffelte Geschosse. Die Fassadenstaffelung ist gestaltungsrelevant und nimmt die horizontalen Linien der Nachbarbebauung auf. Der obere Fassadenabschluss wird durch einen gestalterischen Architraven betont.