






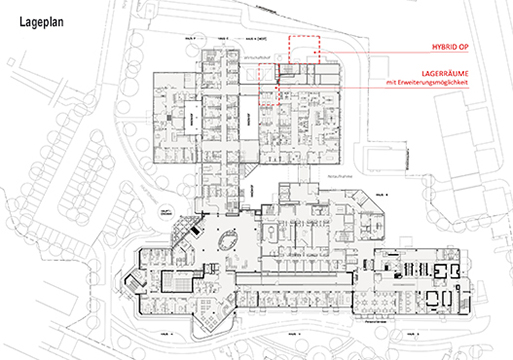
Für den Anbau eines Hybrid-OPs, sowie die Erweiterung des Lagerraumbestands, sollte eine Machbarkeitsstudie durchgeführt werden. Verschiedene Positionen am Krankenhaus-Komplex wurden analysiert. Eine Anschlussmöglichkeit an den vorhandenen OP war ein ausschlaggebender Wunsch des Bauherrn.
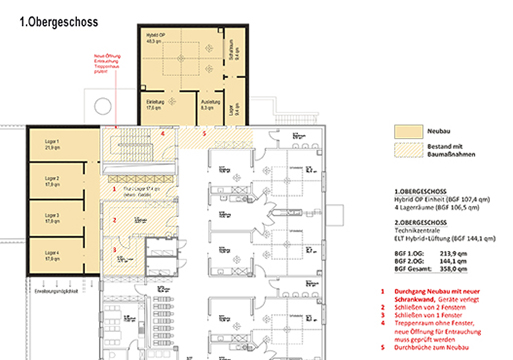
Aufgezeigt wurden die Anbaumöglichkeiten und -positionen und welche zusätzlichen Flächen damit generiert werden können. Die darauf folgende Grobkostenschätzung gab einen Einblick in den etwaigen Investitionsbedarf als Grundlage zur weiteren Abstimmung / Entscheidung.