


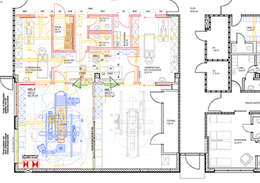
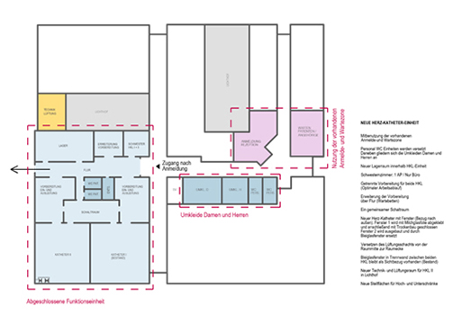
Das bestehende Herz-Katheter-Labor soll aufgrund der hohen Nachfrage mit einer weiteren HKL-Einheit erweitert werden. Eine Entwurfsplanung zur effizienten Einbindung wurde in Auftrag gegeben. In mehreren Varianten wurden mit dem Bauherrn und dem Klinikpersonal vor Ort die Vor- und Nachteile besprochen und ausgewertet.
Letztendlich entschied man sich für die spiegelbildliche Anordnung des zweiten Katheters. Vorteil ist neben dem gemeinsamen Schaltraum auch die übersichtliche Trennung von OP-Bereich und Nebenräumen. Die Ein- und Ausleitung erfolgt für beide Einheiten getrennt. Mit Platz für jeweils ein Wartebett, können die Räume nun flexibel und zeiteffizient genutzt werden.