







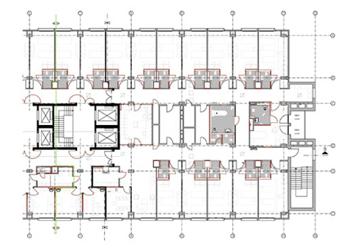
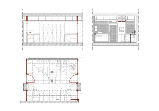
haus 1: sanierung / umbau der etagen 6 und 7 mit jeweils 2.005 m² bruttogeschossfläche erfolgte bei laufendem klinkbetrieb in den anderen geschossen. es erfolgten eine komplette umgestaltung und neuordnung der grundrisse, mit funktions- und nebenräumen, schwesterndienst, patientenzimmern und -bädern, komplette neuinstallation der gebäudetechnik, brandschutztechnische aufwertung, möblierung und raumausstattung im kontext des klinikstandards.
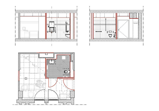
haus 6: kernsanierung, umbau der etagen 1, 2 und 3, sowie die dazugehörigen ebenen 0 und 5 für die komplette haustechnik. – die sanierung von jeweils 1280 qm bruttogeschossfläche pro etage erfolgte bei laufendem klinikbetrieb. Es erfolgte eine komplette umgestaltung und neuordnung der grundrisse, ebene 1 notaufnahme, ebene 2 neurologie, ebene 3 intensivstation mit 10 patientenzimmern, schwesternstützpunkt etc. brandschutztechnische aufwertung, möblierung und raumausstattung im kontext des klinikstandards.