




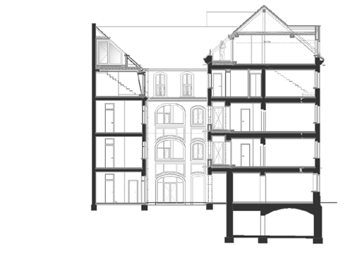
bei dem gebäudekomplex handelt es sich um ein denkmalgeschütztes ensemble aus dem barocken dresden. dieses ist baulich geprägt durch die blockbebauung mit den typischen innenhöfen aus der zeit um 1760. die fassaden sind mit putzspiegeln, gesimsen, sowie zu den innenhöfen mit großen korbbogenfenstern gegliedert. straßenseitig ist die fassade durch eine symmetrische fensteranordnung geprägt, sowie der unterschiedlichen traufhöhen der gebäude. die oberen geschosse dienen außchließlich dem wohnen. im mansard und dachgeschoss sind dieses maisonettewohnungen. fast jede wohnung hat eine terrasse oder eine zum innenhof geöffnete loggia. die architektur erlaubt verschiedene ausblicke in 2 höfe, reizvolle durchblicke und holt das licht in die jeweilige wohnung. eigens für die apartments entwickelte raumteiler-möbel gliedern die räume und schaffen mit einem schrank- und regalteil den nötigen stauraum. Ein aufzug erschließt die geschosse der häuser nr. 13+15.