











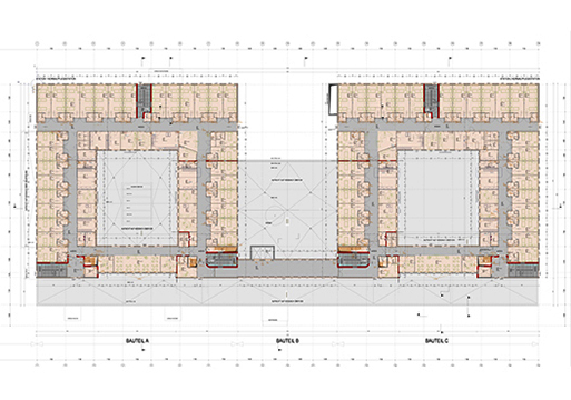
In Northeim entstand ein neues Kreiskrankenhaus mit insgesamt knapp 25.000 qm Grundfläche. Der Entwurf stammt vom Architekturbüro wtr-architekten (wörner traxler richter) und besteht aus zwei verbundenen, identischen und vierstöckigen Quadraten, jeweils mit einem Innenhof. Das Krankenhaus bietet Platz für bis zu 320 Patientenbetten. Die Ausführungsplanung übernahmen wtr und mmk-architekten gemeinsam. Baubeginn des Klinik-Komplexes im Ortsteil „Am Sultmer“ in Northeim war April 2012. Die Übergabe fand am 07.11.2014 statt.