







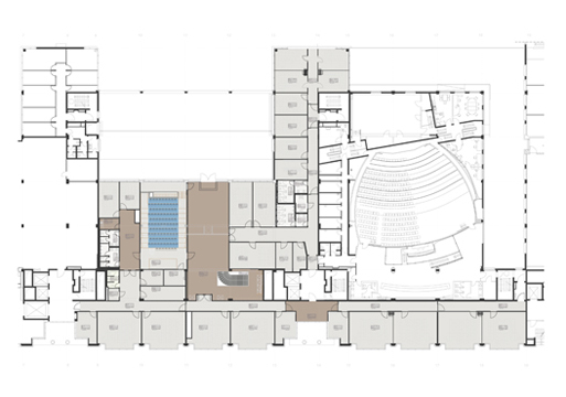
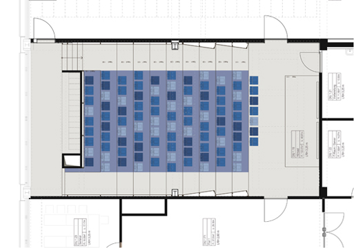
im world trade center in dresden werden auf drei etagen für die diu dresden international university lehr- und seminarräume mit insgesamt 3.000 qm eingerichtet und im bestand umgebaut. im erdgeschoss entsteht ein neuer eingangsbereich mit offener stahltreppe, die in den meeting point bereich des 1. obergeschosses führt. dort gliedert sich der neue hörsaal an, mit platz für bis zu 102 personen. die räume werden in gehobener innenausstattung ausgebaut und integrieren das für jeden raum abgestimmte akustik- und lichtkonzept.