













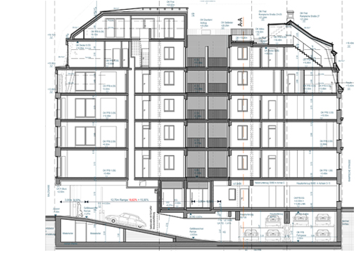
neubau eines wohn- und geschäftshauses in der dresdener altstadt. erschließung über ein offenes treppenhaus, aufzug und offene laubengänge im hof. untergeschoss als tiefgarage inkl. zufahrt tiefgarage innside premium hotel. die fassaden rampische straße sind als kopien der historischen fassaden des 18. jahrhrunderts ausgebildet, die fassaden der salzgasse in zeitgenössischer architektursprache. erdgeschoss: 3 ladeneinheiten 1. obergeschoss: 4 büroeinheiten 2.+3. obergeschoss: je 5 kleine wohneinheiten 4. obergeschoss: 4 wohneinheiten 5.+6. obergeschoss: 2 große maisonette-wohnungen