






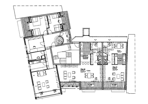
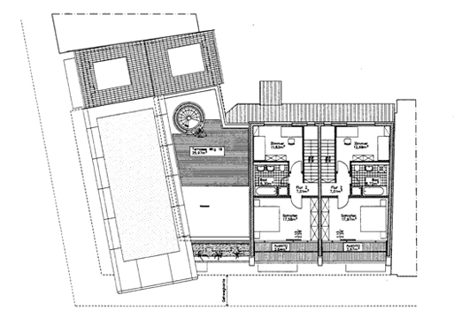
bereits das vorhandene gebäude aus den ende 60er jahren war ein starker eingriff in die gründerzeitbebauung der unmittelbaren umgebung. die lochfassade war glatt verputzt, streng kubisch, und mit seinem weit ausladenen sims verschwand das darüber befindliche sattledach regelrecht. das gebäude war äußerst schmucklos, lediglich durch balkone, sowie rücksprünge von loggien gegliedert. ansatz: das gebäude ist als städtebauliches pendant zu dem 2001 realisierten objekt förstereistraße 12 konzipiert. die alaunstraße stellt eine (teilweise gedachte) städtische achse von der garnisonskirche zur dreikönigskirche dar. das gebäude setzt somit, sowohl von süden als auch von norden aus die achse entlang schauend, ein markantes zeichen. der kubus der dachgeschoss-wohnung schiebt sich ca. 1,50 m aus der gebäudeflucht der geschlossenen zeilenbebaung heraus. ein scharfkantiger stahl-glas-kubus als „wohn-aquarium“. zur alaunstraße wird das thema „flugzeugflügel“ mit einer abgerundeten blech-verkleidung der traufe(n) analog förstereistraße 12 wieder aufgenommen; der gebäudeabschluss nach norden wird allerdings durch eine geschlossen blechfassade aus weiß-eloxiertem blechpaneel ausgebildet, mit einem ca. 2 m breiten holzfenster in ellipsenform. wartungsbalkone sowie die verdachungen sind als stahlkonstruktion mit begehbaren gitterost ausgebildet. das flachdach ist teiweise als dachterrasse zu nutzen.