





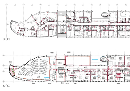
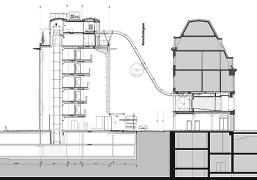
im zentrum der historischen altstadt von dresden, direkt neben zwinger und taschenbergpalais, befindet sich der sogenannte „advanta-riegel“, der in seiner äußeren form einem ozeandampfer ähnelt. der britische star-architekt norman foster, das frankfurter büro hollin+ radoske und dom-ino architekten werden dem gebäude eine neue identität als 5-sterne-hotel mit 198 zimmern und suiten geben. großzügige konferenzräume für 40 bis 180 personen, ein restaurant und diverse bars runden das zukünftige angebot ab. zwei neue expressaufzüge bringen die besucher vom eg in die foyerhalle ins 6.og. spektakulär wird auch die verbindung zum benachbarten taschenbergpalais. (büro foster+ partner)