












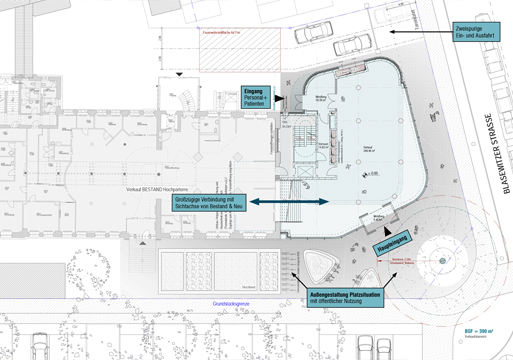
In prominenter Lage an der Kreuzung Fetscher- / Blasewitzer Straße am Uniklinikum Dresden entstand neben dem ehemaligen Sanitätshaus der Ortophädie und Rehatechnik Dresden im denkmalgeschützten Bestandsgebäude ein Erweiterungs-Neubau mit sechs Geschossen. Auf insgesamt rund 2.100m² Nutzfläche kann sich das Traditionsunternehmen den heutigen Ansprüchen gerecht entfalten und die stetig wachsende Nachfrage an orthopädischen Produkte bedienen. Im Erdgeschoss, dem verglasten Sockel des Turms, befindet sich das von der Konrad Knoblauch GmbH gestaltete neue Ladengeschäft mit einladendem Empfang, die Obergeschosse beherbergen Büro und Seminarräume. Städtebaulich fügt sich der Baukörper in die Fluchten und Konturen seiner Umgebung ein und dreht sich gleichsam dem Bestandsgbäude zu. Die weich geschwungene Fassade setzt einen hochwertigen Akzent mit vertikalen Klinkerriemchen und Eloxal Details wie der abgestuften bronzenen Attika.